道路电井图集最新标准深度探讨

道路电井图集最新标准深度探讨

眉飞色舞 2025-01-20 公司概况 339 次浏览 0个评论

随着城市化进程的加快,道路建设与改造日新月异,电井作为城市道路基础设施的重要组成部分,其设计、施工及标准制定日益受到关注,本文将围绕“道路电井图集最新标准是什么”这一主题展开,介绍电井图集的重要性、更新背景及其最新标准。

电井图集的重要性

电井图集是指导电井设计、施工、维护的重要依据,它包含了电井的结构设计、尺寸规范、材料选择、施工工艺等一系列内容,对于保证电井工程的安全性、经济性及施工效率具有重要意义,随着技术的发展和工程实践的不断积累,电井图集的标准也在不断更新和完善。

标准更新的背景

随着城市化进程的加快,道路电井的设计、施工面临着越来越多的挑战,为了更好地适应城市发展需求,提高电井工程的安全性、可靠性和经济性,对电井图集的标准进行更新势在必行,新材料、新技术、新工艺的不断涌现,也为电井图集标准的更新提供了技术支持。

关于道路电井图集的最新标准,主要包括以下几个方面:

道路电井图集最新标准深度探讨

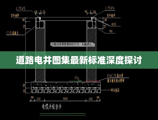
1、电井结构设计:根据道路等级、交通流量、地质条件等因素,对电井的结构进行合理设计,确保电井的承载能力和稳定性。

2、尺寸规范:对电井的尺寸进行统一规范,包括电井的直径、深度、间距等,以便于施工和后期维护。

3、材料选择:根据电井的使用环境和工程需求,选择合适的材料,如钢筋混凝土、铸铁等。

4、施工工艺:明确电井的施工流程、施工方法、施工质量控制等要求,确保电井的施工质量和安全性。

道路电井图集最新标准深度探讨

5、安全防护:加强电井安全防护措施,包括设置警示标识、安装防护栏等,防止人为破坏和意外事故发生。

标准实施与监管

标准的实施与监管是确保标准得到有效执行的关键环节,相关部门应加强对电井图集最新标准的宣传和培训,确保设计、施工、维护人员了解并遵循最新标准,应加强对电井工程的监督检查,确保工程符合最新标准的要求,对于不符合标准的工程,应责令整改,确保电井工程的安全性。

本文介绍了道路电井图集的重要性、更新背景及其最新标准,电井图集是指导电井设计、施工、维护的重要依据,其标准的更新与完善对于提高电井工程的安全性、可靠性和经济性具有重要意义,相关部门应加强对电井图集最新标准的宣传和培训,确保工程符合最新标准的要求,为城市的发展提供有力保障。

你可能想看:

转载请注明来自威巍集团,本文标题:《道路电井图集最新标准深度探讨》

百度分享代码,如果开启HTTPS请参考李洋个人博客

发表评论

快捷回复:

验证码

评论列表 (暂无评论,339人围观)参与讨论

还没有评论,来说两句吧...

Top